Ingatlan gyorskeresés

Terület
-
Ár
-
Ország:

részletes keresés >>>

Ingatlant keresekIngatlant k�n�lokAlb�rletet keresek-kin�lok

ÚJ ÉPÍTÉSŰ CSALÁDI HÁZ-KITŰNŐ ELHELYEZKEDÉSSEL

Azonosító: 1602
Terület: 100 (m2)
Ár: 75 (M Ft)
Állapot: kiváló
Szobák száma: 4 (db)
Fűtés: gáz (cirko)
Típus: lakóingatlan használt
Parkolás: lakáshoz van kültéri parkoló
Pince: nem
Hely: Veszprémvarsány
Utca: Petőfi Sándor utca
Szerkezet: tégla

ÚJ ÉPÍTÉSŰ CSALÁDI HÁZ VESZPRÉMVARSÁNYBAN!

2026-ban induló, magas műszaki tartalommal bíró, panorámás környezetben épülő, földszintes ház megvásárolható.

Rendezett településkép, kulturált környezet!

FŰTÉSKÉSZ ÁR: BRUTTÓ 75.000.000,- HUF

AZ ÁR A TELKET, ÉS AZ ÜGYVÉDI KÖLTSÉGEKET IS TARTALMAZZA!

 

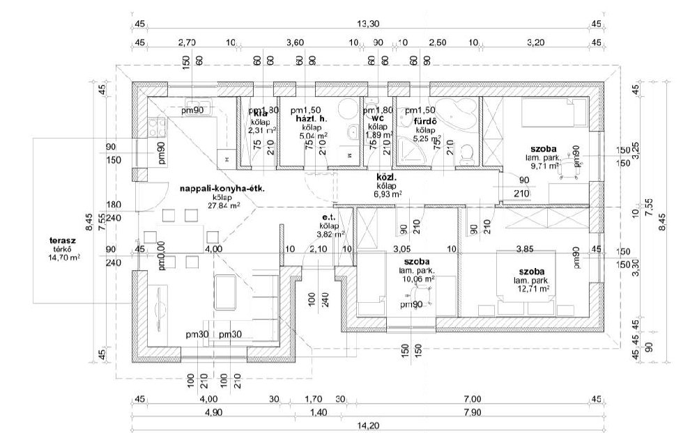
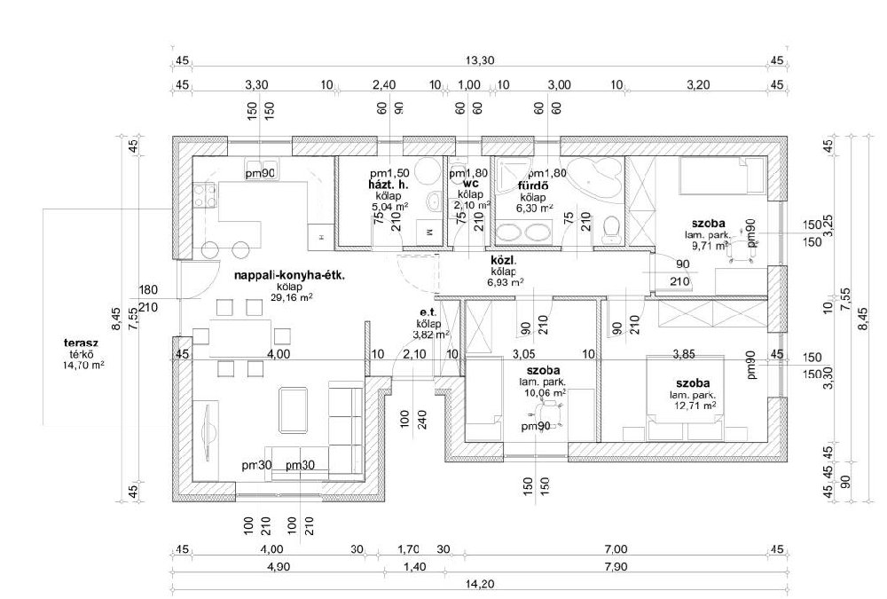
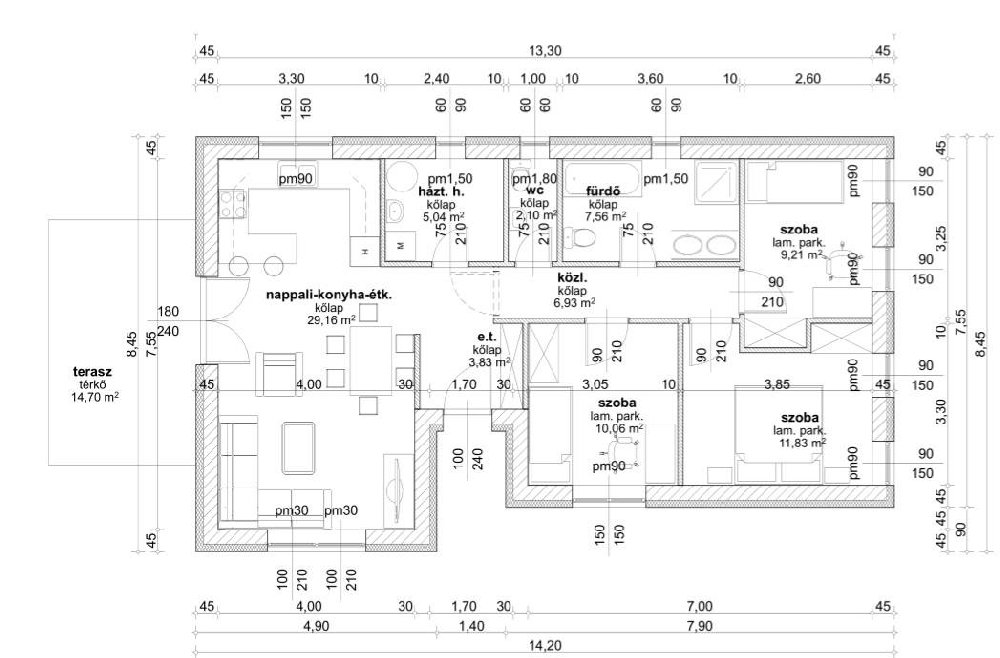
- Lakótér: 100 m²

- 3 hálószoba + nappali elrendezés

- déli tájolás

- Telek: 812 m²

- 30 cm vastagságú gyapot zárófödém-szigetelés

- 20 cm vastagságú, polisztirol homlokzati szigetelés, választható nemesvakolattal

- 23 cm-es aljazt-rétegrend

- padlófűtés, gázkazán

- LEIER kémény az alternatív fűtéshez

- BRAMAC cserép

- alapszerelt víz, és villamos hálózat

PROJEKT VÁRHATÓ BEFEJEZÉSE: 2026 DECEMBER

Most még teljes mértékben személyre szabható:

4 alaprajz közül választhat

Megbízható kivitelezés, garancia.

Az utca rendkívül csendes, kis forgalmú, a település központja 6-700 m-es távolságra található, ahol üzletek, étterem, különböző szolgáltatók, patika, posta, fodrász stb. megtalálhatóak.

Iskola, óvoda, bölcsőde, orvosi rendelők a közelben, 3-5 perces sétával elérhetőek.

A település földrajzi elhelyezkedése is remek, ahonnan több nagyobb város is könnyen elérhető egyéni, valamint tömegközlekedéssel (busz, vonat).

Irodánk további szolgáltatásai: ÉRTÉKBECSLÉS, ÜGYVÉDI-JOGI SZOLGÁLTATÁS, DÍJMENTES HITELÜGYINTÉZÉS, ENERGETIKAI TANÚSÍTVÁNY KÉSZÍTÉS.

OTHON START, CSOK IGÉNYELHETŐ!

Bővebb információ, és megtekintés egyeztetése telefonon.

Az elírás, és tévedés jogát fenntartjuk!

 

 

 

Kapcsolattartó:
Tavas Albert

Tel.: +36-30-507-1761
E-mail: albert.tavas@central-ingatlan.com